Boone Facility
Boone Facility Use
DMACC Boone Campus offers areas on campus for non-DMACC events. Learn more about the areas available and rates. Areas not listed below are at the DMACC District-Wide Rates that apply to all Campuses and Centers.
Space Fees
Academic Building
Highlighted areas below are available to rent through DMACC Boone Campus.
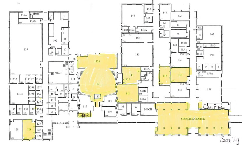
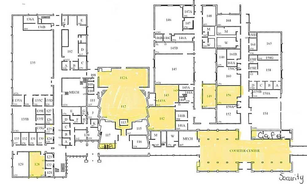
| First Floor | ||||
|---|---|---|---|---|
| Room (select room to view photo) | Square Footage | Capacity | Weekday Rate | Weekend/Evening Rates after 4 pm** |
| 118 | 600 | 12 | $10/hr, $70/day | $10/hr, $70/day |
| 128 | 628 | 25 | $10/hr, $70/day | $10/hr, $70/day |
| 142 - Computer Lab | 1027 | 19 | $10/hr, $70/day | $10/hr, $70/day |
| 143 - Computer Lab | 802 | 19 | $10/hr, $70/day | $10/hr, $70/day |
| 149 - Conference Room | 517 | 12 | $10/hr, $70/day | $10/hr, $70/day |
| 156 | 679 | 24 | $10/hr, $70/day | $10/hr, $70/day |
| Theatre - Room 112 | 4308 | 240 | $50/hr, $375/day | $60/hr, $450/day |
| Courter Center | 104 | $50/hr, $400/day | $50/hr, $400/day | |
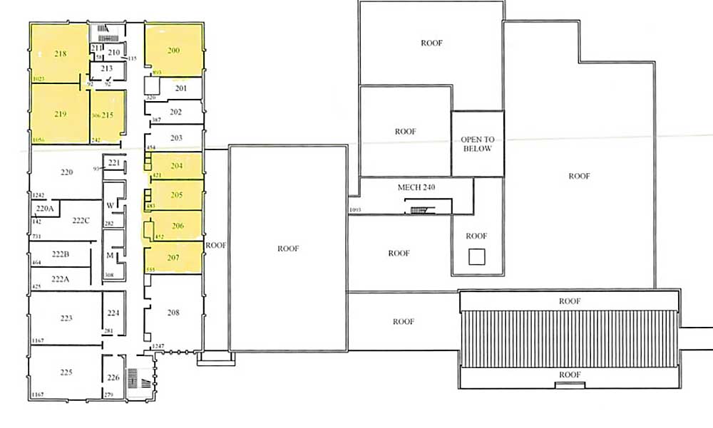
| Second Floor | ||||
| Room (select room to view photo) | Square Footage | Seat Capacity | Weekday Rate | Weekends* |
| 200 | 893 | 44 | $10/hr, $70/day | $10/hr, $70/day |
| 204 | 421 | 18 | $10/hr, $70/day | $10/hr, $70/day |
| 205 | 483 | 16 | $10/hr, $70/day | $10/hr, $70/day |
| 206 | 452 | 18 | $10/hr, $70/day | $10/hr, $70/day |
| 207 - Computer Lab | 555 | 16 | $10/hr, $70/day | $10/hr, $70/day |
| 215 | 306 | 25 | $10/hr, $70/day | $10/hr, $70/day |
| 218 - Computer Lab | 1023 | 20 | $10/hr, $70/day | $10/hr, $70/day |
| 219 - Computer Lab | 1056 | 36 | $10/hr, $70/day | $10/hr, $70/day |
Gymnasium Building
Highlighted areas below are available to rent through DMACC Boone Campus.
| Room | Square Footage | Seat Capacity | Weekday Rate | Weekend/Evening Rates after 4pm* |
|---|---|---|---|---|
| 171 | 624 | 28 | $10/hr, $70/hr | $10/hr, $70/hr |
| 173 | 628 | 28 | $10/hr, $70/hr | $10/hr, $70/hr |
| Gym | 10837 | 945 | $85/hr, $500/day | *$100/hr, $625/day |
| 196 - Fareway Field House | 14794 | 1000 | $85/hr, $500/day | *$100/hr, $625/day |
* Space fees do not include special Service Fees for Security, Custodial and Technicians.
* Minimum Rental - 2 hours
* Charges for additional audio/visual equipment may apply in some areas.
* Catering Services Available - Contact in Advance. No Kitchen Access. Alcohol is
not allowed on DMACC property at any time.
*Day rate is for 8 hours
**Evening hours after 4 pm and weekend rentals will include a charge for Custodial, Security, Technology, and Grounds if additional coverage is needed. Minimum 2 hour charge.
Service Fees
If DMACC determines additional personnel need to be brought in due to the nature of the event or the size/time/content, these fees will be charged.
| Type | Weekday Rates | Weekend Rates |
|---|---|---|
| Security | $50/hr per officer | $50/hr per officer |
| Tech | $50/hr per technician | $50/hr per technician |
| Maintenance/Custodial | $45/hr per custodian | $45/hr per custodian |
| Grounds Set-Up | $50/hr | $50/hr |
If you have questions or would like to schedule a tour first, please contact us.


